2/10 Lymerston Street
$380 PW

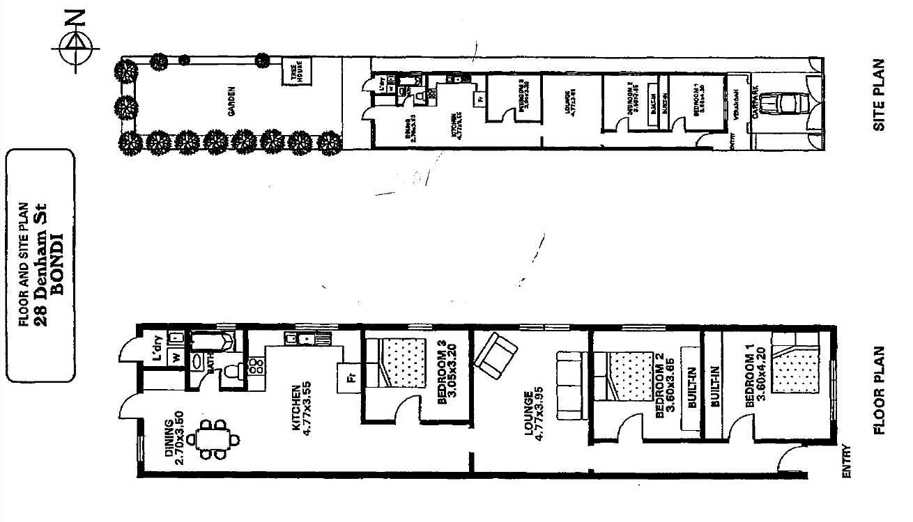
28 Denham Street
$850 PW
9/438 Liverpool Road
$300 PW
114 Alice Street
$780 PW
3/22 Wemyss Street
$350 PW
4/39 Church Street
$400 PW

287 Davistown Road
$3,467pm plus GST & outgoings

9/40 Bowman Street
1,181.82
55 Town Street

20/362 Windsor Street
$280.00 per week